Coup2Coeur Immobilier Agence
Télécharger la fiche

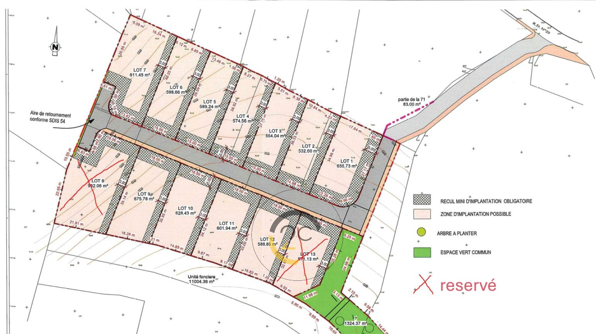
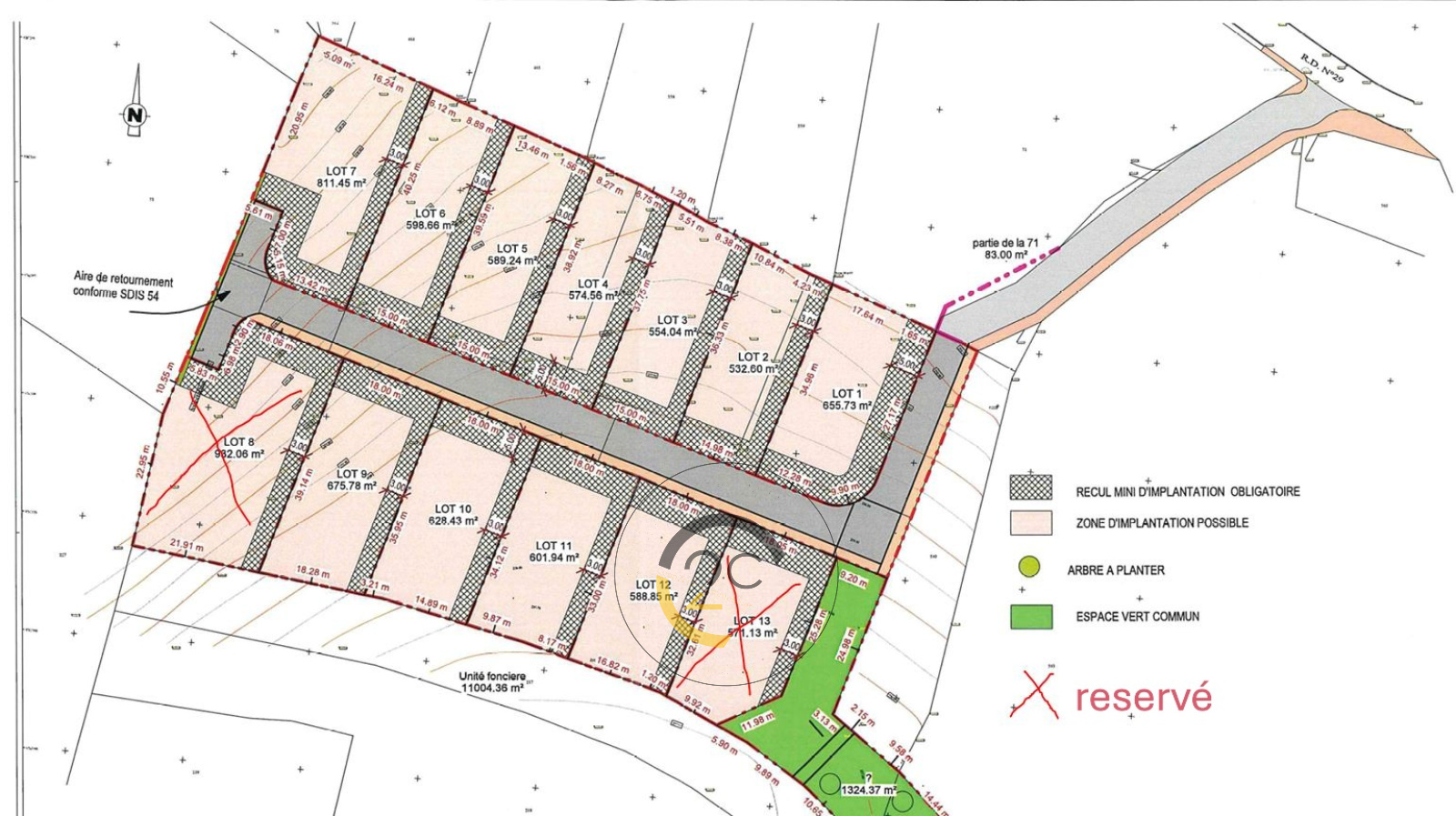
Terrain à batir 553 m²

Saint-Pancré (54730)
106 000 € Référence 1244

A propos de ce bien

dans la commune de saint pancré , quleques parcelles disponibles dans un cadre calme et verdoyant, à deux pas de la Belgique et du Luxembourg.

à partir de 106 000 € seulement !

Options pour votre projet immobilier :

  1. Vendez votre bien actuel et nous organisons l’achat de votre terrain.
  2. Achetez un terrain libre de construction et faites construire votre maison neuve avec un constructeur.
  3. Achetez un terrain libre de construction et réalisez vous-même votre maison en auto construction.

Avantages de nos terrains :

  • Parcelles libres de construction et prêtes à bâtir
  • Cadre verdoyant et calme, idéal pour la famille
  • Proximité des grandes villes, du Luxembourg et de la Belgique
  • Accompagnement personnalisé avec 20 ans d’expérience en immobilier

Contactez-nous dès maintenant pour réserver votre parcelle ou obtenir plus d’infos :

  • Luxembourg : +352.661.999.800
  • France : +33.382.267.447 / +33.699.734.040
  • Email : info@c2c-immo.com

Achetez votre terrain, construisez votre maison, réalisez votre projet immobilier !


Zone soumise à une obligation légale de débroussaillement.

Caractéristiques de ce bien

  • terrain 553 m²

Diagnostics énergétiques

Consommation énergétique
A B C D E F G
Emission de gaz à effet de serre
A B C D E F G
DPE ANCIENNE VERSION

Informations financières

Prix de vente 106 000 € Les honoraires d'agence seront intégralement à la charge du vendeur

Calcul des mensualités

* Champs obligatoires